盘点新加坡最优质的学区房,连富豪名人都争相搬进来 [2个月]
华新市场部 • • 14343 次浏览
在“居者有其屋”的新加坡,拥有一套房对于大多数家庭来说并不困难。但拥有一套能伴着孩子顺利成长的学区房,却着实不易!
它,不止是全岛人民向往的住所,也是国内外名人富豪们追求的目标。
但不是所有新加坡的学区房都值得购买,也有优劣之分。交通、周边环境、植被覆盖、吃喝玩乐购等条件一个都不能少!
今天,就为大家盘点一下新加坡最优质的学区房,连富豪名人都爱不释手!说不定还能和他们成为邻居噢~
武吉知马
位于新加坡黄金邮区第10区的武吉知马,无疑是以其清幽的自然环境,传统的历史文化以及超低密的优质别墅洋房而出名,无疑是优质学区房区域的首选,正因为此,也成为新加坡的富豪名人最喜欢居住的区域。
武吉之马位于新加坡地理的中心,靠近号称新加坡“绿肺”的多个自然保护区。离乌节路市中心也只有几分钟的车程,生活非常方便。
更重要的是,他也是新加坡非常知名的学区。大家所熟知的南洋小学, 南洋女子中学,新加坡女子学校,美以美女子学校,华侨中学,国家初级学院,以及国际学校如新加坡韩国学校,新加坡德国学校等都在这里。
......
从小学到大学,如此多优质学校,成就了这里众人追捧的学区房,其中,性价比最高的要数知名发展商长春产业旗下的富雅轩(Fourth Avenue Residences),柏傲景(Juniper Hill)和御景苑(Royalgreen)三个项目啦!
长春产业
长春产业,代表作有大世界购物商城,东陵坊购物中心以及著名的住宅项目Skysuites@Anson,Suites@Orchard,RV Residences等
01
御景苑
RoyalGreen
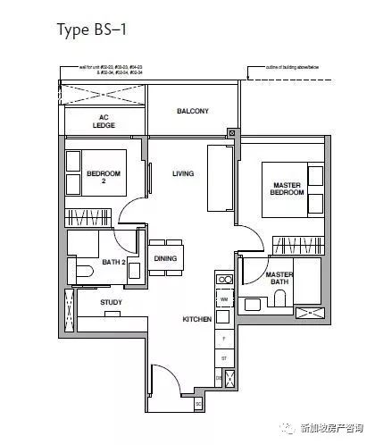
御景苑位于武吉之马的核心位置-第六道(Six Avenue),与优质别墅洋房为邻,拥有超低密居住环境和优美自然风景。他同时也是这一带13年来开盘的唯一一个永久地契新项目。显得弥足珍贵。
公寓本身是永久产权,占地16000多平方米,拥有285间单位,由8栋高5层的楼房组成,是有规模的中型项目。户型从两卧单位起到四卧单位。预计在2022年底建成拿钥匙。
Your browser does not support video tags
/地理与交通/
御景苑拥有绝佳的地理位置,去市中心和新加坡各大重要地点都很方便。
喜欢乘搭公共交通的朋友,步行5分钟可达市区线的第六道地铁站(Six Avenue MRT)。市区线是近几年新建的一条线路非常快速高效,两站到达环线植物园站,四站到达红线纽顿,五站到达绿线的武吉士站,七站到达新的金融中心海湾舫。
开车的朋友通过高速路PIE,BKE,6分钟车程可达荷兰村和植物园,10分钟车程到达乌节路。
/周边购物/
住在御景苑生活也非常方便。日常可以步行到在家附近的第六道购物中心。或者周围各种店屋里的餐馆就餐。
/周边学校/
1-2公里内小学
莱佛士女子小学(Raffles Girls' Primary School)
1-2公里内中学
华中(Hwa Chong Institution)
南洋女中(Nanyang Girls' High School)
美以美女中(Methodist Girls' School (secondary))
初级学院
国家初级学院(National Junior College)
国际学校
华中国际(Hwa Chong International School)
瑞士,德国,韩国等知名国际学校
(家长贴心提示,莱佛士女子小学是拥有天才班的小学。根据近几年的统计,2C阶段,公民是不用抽签,包进的哦。这意味着您也不用做义工等各种努力,只要房子买对,就可以进了。)
02
富雅轩
Fourth Avenue Residences
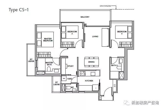
富雅轩是今年一月份开盘的项目,也是长春产业武吉知马系列的第一个开盘的项目,把他和御景苑放在一起介绍,是因为两个项目的位置非常靠近。
Your browser does not support video tags
富雅轩位于武吉知马-第四道(Fourth Avenue)。同样享有低密的别墅居住环境。
位于第六道地铁站(Six Avenue MRT)门口,通过有盖走廊一分钟即可抵达。作为一个99年地契的项目,这样靠近地铁站是非常加分的一项。
它的交通和周边设施都与御景苑相同,不同在于公寓本身。富雅轩是三个项目中最大的一个,共有476个单位,占地面积 18,500多平方米,由九栋高低分别为二层,六层或者十层的楼房错落有致的分布组成。预计2022年底拿钥匙。 
/周边学校/
除了以上提到之外。经官方证实,莱佛士女子小学(Raffles Girls' Primary School) 在富雅轩6号楼的一公里内!除了包进的公民朋友,持绿卡的朋友机率提高哦~
非常贴心的是,6号楼目前的一房,两房还有1万到1万2新币的促销。有女宝的家长加油!
03
柏傲景
Juniper Hill
柏傲景是三个楼盘中最靠近乌节路的项目。位于Ewe Boon Road, 建在抬高的平面上,属于武吉知马-东陵区。毗邻宁静尊贵的东陵使馆区,香格里拉酒店,著名的巴摩尔(bamoral)住宅区。
公寓本身是永久产权,拥有115间单位,由一栋高达12层的高楼组成。户型从两卧单位起到五卧单位。预计在2022年3月建成拿钥匙。
Your browser does not support video tags
/交通/
从公寓步行5分钟可达最近的地铁站斯蒂文站(Steven MRT)。斯蒂文站同时拥有两条线路是市区线和汤申线的转换站,汤申线建好后,三站可达乌节路林荫道地铁站,四站可达乌节路站。市中心近在咫尺。
开车的朋友5分钟就可到达乌节路。
/周边学校/
周边的学校超级强大。一公里内四所名校。分别是两所小学:新加坡女子学校(女校)和英华小学(男校)。两所中学:莱佛士女子中学和圣约瑟中学。1-2公里还有高级学院:华中和公教。国际学校:查茨沃斯国际学校,及大学:UBS 商业大学和国大武吉知马校区。 
(给家长贴心提示,一公里内的男校和女校都是比较容易进的学校。不论家里是男宝还是女宝,都不用担心了)
-
#1
RoyalGreen 户型和价位更新 -独特卖点 武吉知马13年来首个永久地契的新公寓
两房一卫 实用面积(59平方米)价位172万起

两房两卫 实用面积(62-67平方米)价位182万起

两房加书房 实用面积(67-72平方米)价位210万起

三房 实用面积(86平方米)价位250万起

三房加书房 实用面积(99-100平方米)价位283万起

四房 实用面积(133-137平方米)价位397万起

-
#2
更多信息 请添加以下微信,或关注房产公众号加个人微信号,请扫描
更多房产信息,请订阅hannah的房产公众号,会及时更新最新的楼盘信息