偶然看到房屋广告Mayfair Condo有dual key studio, 估计是聪明的屋主自己改的。
网上看到有人把CCK的Northvale改了,看着还不错。
出自 http://danlibinawesomejourney.blogspot.com/


偶然看到房屋广告Mayfair Condo有dual key studio, 估计是聪明的屋主自己改的。
网上看到有人把CCK的Northvale改了,看着还不错。
出自 http://danlibinawesomejourney.blogspot.com/


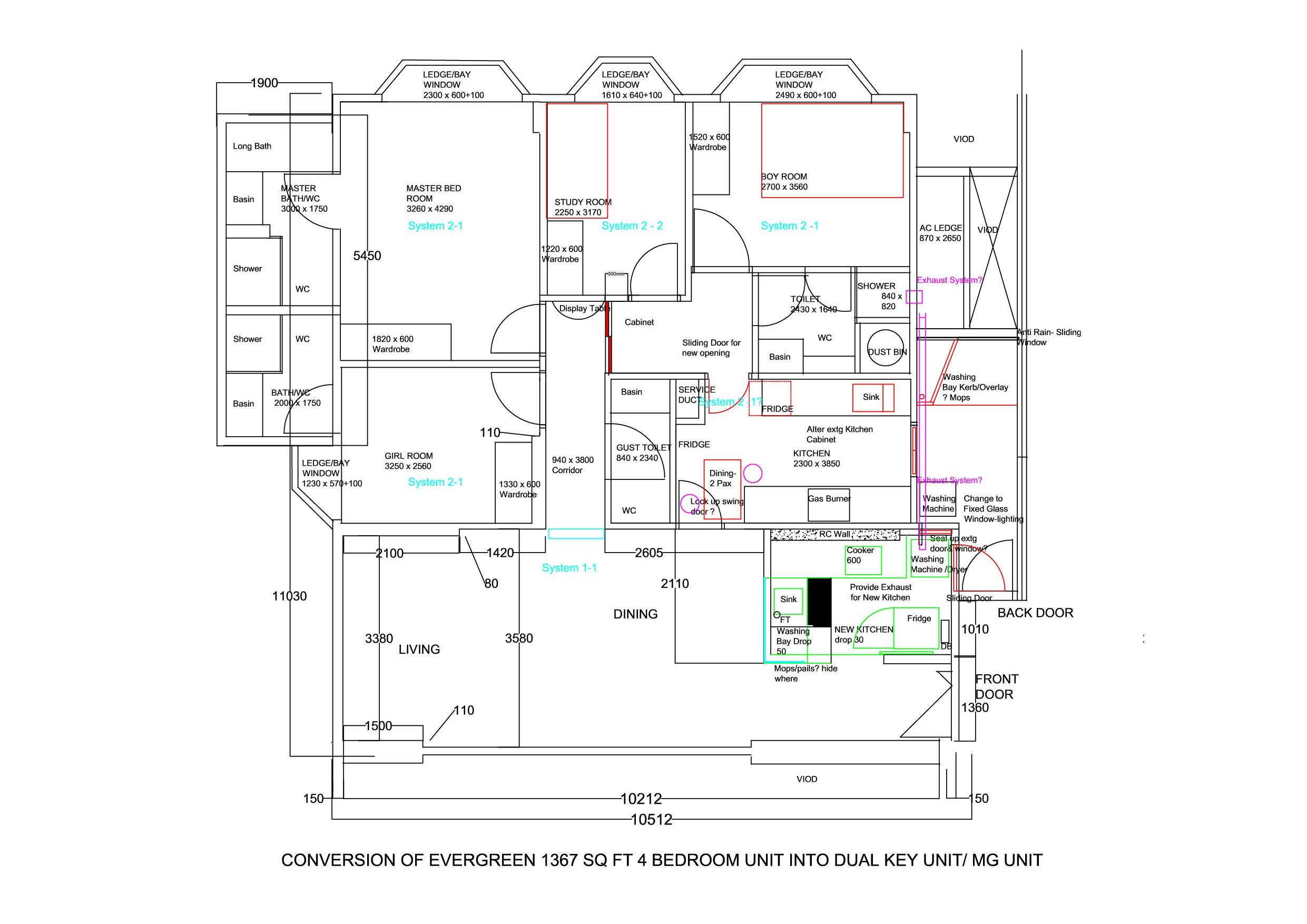
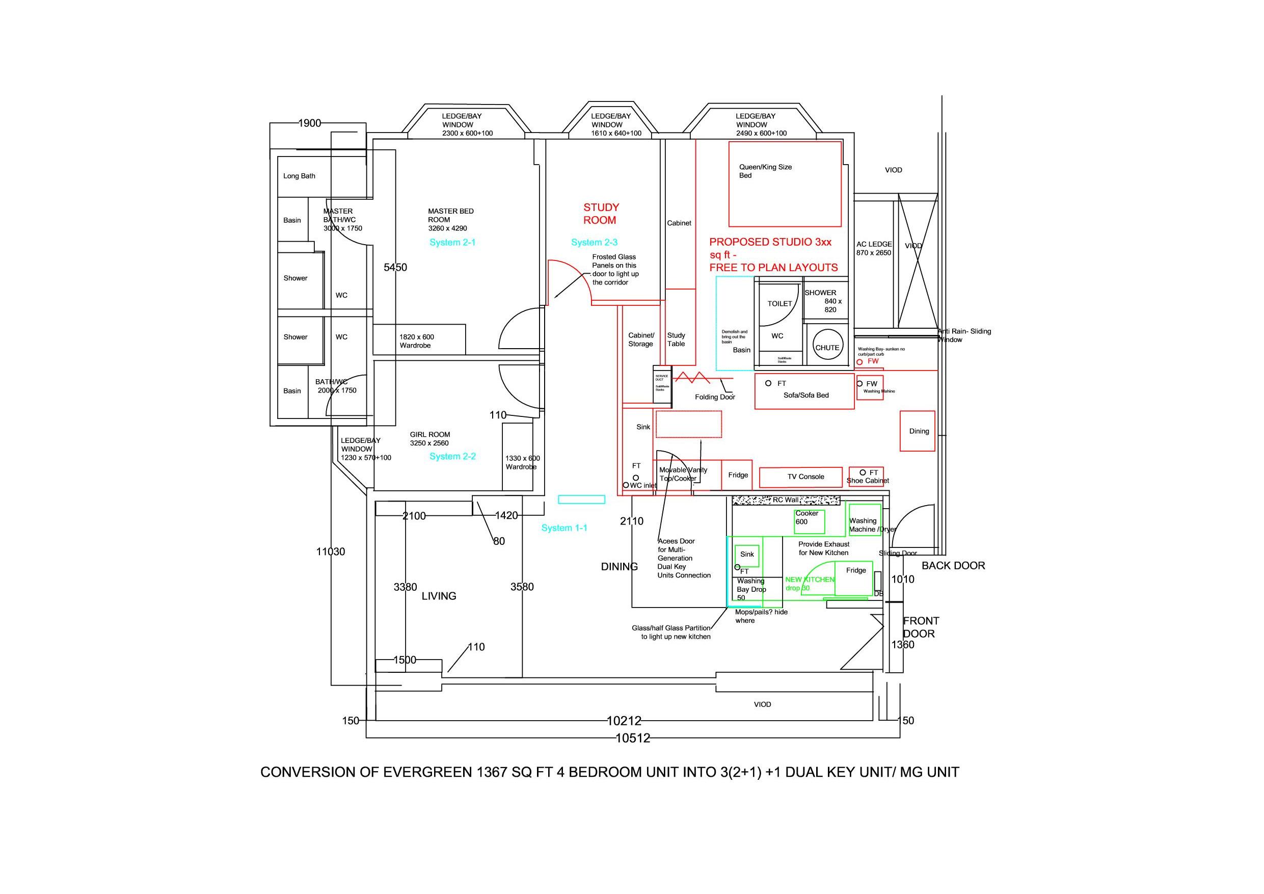
CONVERSON OF BIG OLD CONDO INTO DUAL KEY UNITS - EVERGREEN PARK HOUGANG AVE 7Design Stage only 
公寓我不知道但是老的hdb 有jumbo flat 可以考虑。租售比不错。
需要得到有关部门批准吗?还是自己就可以改?
哼唧 卧室户型不方正 异端啊
纯技术性讨论。装修好像都要交一份去物管吧。估计不拆承重墙,不影响建筑结构,不加砖墙就可能被接受。只是想卖的时候得找有此爱好的买家。
是的。jumbo属于天然dual key。难得好地点的,而且物以稀为贵。xmlzj
哥们,你是怎么找到这个blog的都是人才!
这个好有趣,感觉很多大的旧公寓,只要自己动脑经,都能做。动脑经想出一个入户门的动线,多做出一个kitchen排水,整体电磁炉灶,其他似乎就都好解决了。
conversion of big old condo into dual key unit加牆 要 SCDF 消防局批准,后港的例子,后面那 2 间房 入口比较小,如果 住 2 个人,670mm阔就可以了,不然的话,就要 850mm,考虑打掉一点 pipe enclosure 的磚加寛,另外两间房可以打通,powder room 打掉做后 2 房的厨房,旧的厨房改成客厅,就很大方了,只是动的太多,用费就大。
所有的私人公寓里面你说了算,可以完全拆除重建(要通过专业建筑工程师批准就可以),所以理论理论上都可以改
确实,不过有趣的是能改动的floor plan, 洗手间不能堆在一起,分开两套供水排污应该是必备条件吧。
后港这个有链接吗?看不太懂。感觉卫生间改成厨房加卫生间应该比较可行
编继续编。。。 只有一个厕所的话,改毛dual key
抬杠不是?理论上懂不懂?
一个厕所side by side 用pipe 还是可以的
CONVERSION OF OLD BIG CONDO INTO DUAL KEYS /MG UNITS - HOUGANG EVERGREEN PARK2 Layouts , the 2+1 Study is better , no waste of corridor circulation area

CONVERSION OF OLD BIG CONDO INTO DUAL KEYS UNITS手痒 ,原本的 4 房 布置,现在 改成 3+1 及 2+2, 可以给有意 装修 成 两套 房 的 同学 提供一些 意见,拿这个设计找人装修及 改良 ,更进一步,更理想 ,可以省掉一些 麻烦,可以多代同堂,兄弟姐妹同住但有 隐私,也可以 一半出租一半自住。 兩套都出租的话,电箱要改,也是一个费用,怎样算及 分摊水电费,broad band 也要多拉一条,也是有一些问题 及费用。 后来改的和 原本设计会有一点落差,但是这个 设计,两边都有好一点的 厨房,是一个卖点。
将来要卖 的 话,除非同好,买家会比较少,所以我设计了一道门( 原来厨房的门) 相通
本人 不是中介也不是 装修商。
Evergreen 水管很旧了,記得更换水管及做好防水,电线的话,只要 前屋主没有 over load 的使用 , 氧化不大,应该不用换新的,电流是 60A single phase , 提意要实的同学做好功课。


装修】讨论一下哪个二手公寓可以改成dual key的,欢迎跟帖提供floor plan挺好的,注意风水的问题。
我觉得 有三间我看过的
改了会比不改好
像玉如意一样的发散户型
一个park infinia on wee nan 四房
一个 the claymore 3 房
一个 heritage apartment 3 房