后港 Evergreen Park 4 房 90 多万
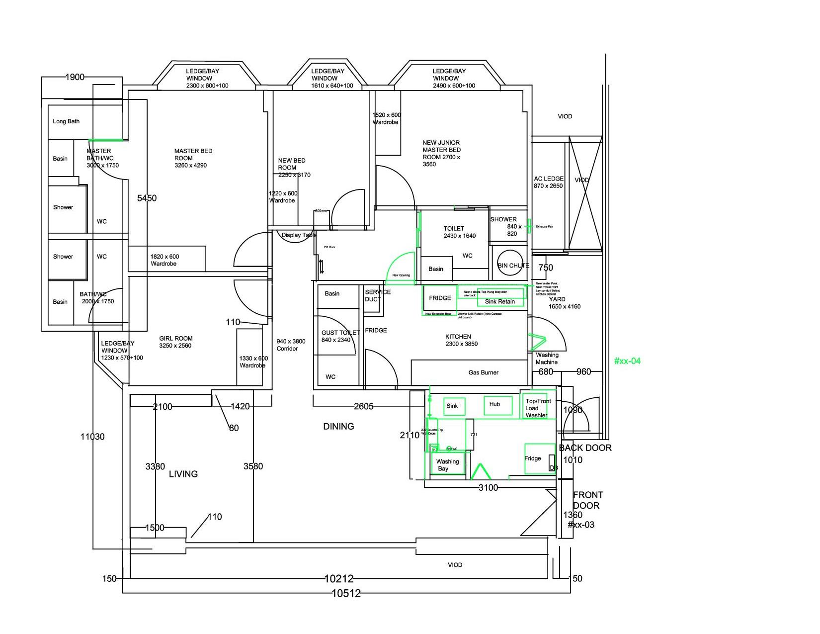
clc4 • • 40949 次浏览后港 Evergreen Park 4 房 90 多万, 三代同堂,或者改为 双 鍞匙 ( Dual Key ) , 只是 多開的 从厨房 去 2 个 后房 洞口太小 ,只能住2 个人,如果真的隔成 2 间。消防局 規定 内走廊门最少 850mm 宽度, 請 狮城帮各位大神看可行性如何?
-
#1
service duct可以敲吗?或者内部全部敲了重来就无压力了!
-
#2
这么便宜 lz可能找到的是假公寓
-
#3
非也这个公寓价位即是如此 低楼层的80万左右 年龄也不久 且周围有俩所不错的小学
-
#4
重点是地点啊 乌兰的公寓也便宜
-
#5
这个不是condo 是 apartment价格很稳定 700+psf 很久很久 房龄20+ 屋内设计媲美10多年前top的组屋 楼主去参观一下就知道了 泳池是唯一卖点
-
clc4 楼主#6
Evergreen Park 4 Rooms 1367 sq ft
Service Duct , 内有 6 吋 Soil and Or 4寸 vent pipe ,占据不多位,但是如果靠近 开洞的那边,也不能 达到 SCDF 的 850mm Clear, 只能 迏到 750 mm 左右,打掉 磚牆才知道, condo 开洞敲牆要 PE 專业工程師 監管证明。也要 MCST 居管会批准。如果 粪管徧 向 Guest Toilet , 850mm clear 就沒问题,可行性隔成真正的 2 间 dual key ,不然的话,就是要靠 那个 PD door ,可以从内 2 间房 开门逃生,如果達到 850mn clear , 可能 用磚牆代替 PD door. Evergreen Park 是东北部最便宜的 condo, 2000 TOP.
-
clc4 楼主#7
3 个房间 1000-1200 方尺 layout 不理想,只要求 70[…] 多万。4个房间比较理想,但是要求 90多万,几年前 1 百多万。