有人了解trevista的这个户型么?
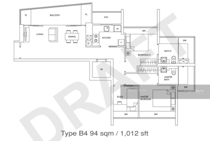
干什么的 • • 45786 次浏览trevista 均价还挺高的,唯独这个户型(1012sft)的便宜,估计是有什么大的缺陷。 我能看到的就是外面没有厕所/洗手间, 客厅很狭长,不够宽敞, 还有其他的么? 不太懂,求指教。
-
#1
目测通风不太好楼主可以找个炎热的下午去看房,感受一下没有空调行不行。然后保姆房(HS)的位置有点奇怪。楼主可以找个炎热的下午去看房,感受一下没有空调行不行。然后保姆房(HS)的位置有点奇怪。
-
#2
看了一下4年前的成交那个时候1012这个户型似乎也没有明显的贱卖,只是最近一个1012的成交明显比别人便宜。应该还是因为房型奇怪。那个时候1012这个户型似乎也没有明显的贱卖,只是最近一个1012的成交明显比别人便宜。应该还是因为房型奇怪。
-
#3
客厅很窄,长条形的,按上面那个只能放两座沙发,如果换个方向放是不是沙发和电视之间的距离很近?沙发,如果换个方向放是不是沙发和电视之间的距离很近?
-
#4
这个一到20楼才有邻居是studio
20楼以上两个单位合并成一个4房单位。4房的户型正常,这个客厅惨了点。
trevista 两房全部有西晒。这个2+S 面北。如果不是太需要那个study room 建议考虑普通两房。个人觉得915那款的户型比较好。邻居是studio
20楼以上两个单位合并成一个4房单位。4房的户型正常,这个客厅惨了点。
trevista 两房全部有西晒。这个2+S 面北。如果不是太需要那个study room 建议考虑普通两房。个人觉得915那款的户型比较好。 -
#5
每个窗户都有飘窗这面积也很可观这面积也很可观
-
#6
典型的手枪型户型厨房还正好在手枪扳手位置,风水上不好,楼主可以参考下。厨房还正好在手枪扳手位置,风水上不好,楼主可以参考下。
-
干什么的 楼主#7
准备要孩子,怕两房不够三房又很贵,只能瞅瞅这种奇怪的三房又很贵,只能瞅瞅这种奇怪的
-
干什么的 楼主#8
确实客厅太窄了还有大阳台还有大阳台
-
干什么的 楼主#9
我也觉得很奇怪不知道为啥不知道为啥
-
#10
应该主要是因为通风不好我在UE Square租住过这种常常的户型,白天不开空调特别热。我在UE Square租住过这种常常的户型,白天不开空调特别热。
-
#11
长长的户型xmlzjxmlzj
-
#12
看起来是呀,貌似不大吉利呀向玛丽致敬向玛丽致敬
-
#13
我也想说这个这个房型放在国内可能是大多数人都不要的
楼主要有选择的话多看看吧这个房型放在国内可能是大多数人都不要的
楼主要有选择的话多看看吧