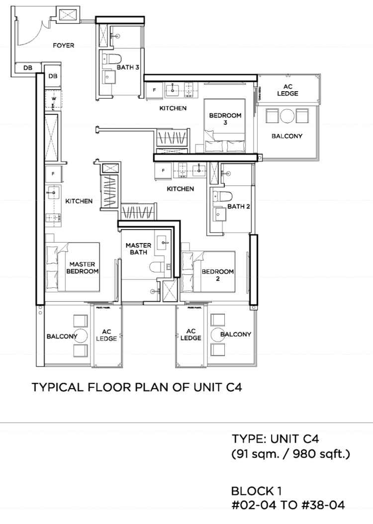
传说中的3锁匙公寓
七夜 • • 48810 次浏览独立房间没得说
独立厕所 也说得过去
就连客厅 阳台也是独立的
这还是一个单位吗?
分明就是三户人家凑合在了一起
要不为啥活生生地分得如此清晰
跪了 看完 floor plan 飘来两个字 凌乱
开发商 费心了
-
#1
厨房也独立,水电表空调独立才给力啊
-
#2
发个图看看看看
-
七夜 楼主#3
还真是这样子就这么被你猜中了 水电表都是独立的就这么被你猜中了 水电表都是独立的
-
#4
可能给基友啊闺蜜开发的住一起又各过各的住一起又各过各的
-
七夜 楼主#5
想象力无穷被你的想象力折服了
仔细一想不无道理
就让这个 Triple Key 成全他们吧被你的想象力折服了
仔细一想不无道理
就让这个 Triple Key 成全他们吧 -
七夜 楼主#6
发不了为什么一直发不了图片呀
很慢很慢为什么一直发不了图片呀
很慢很慢 -
#7
方便出租户合住户一大家子人就囧了一大家子人就囧了
-
七夜 楼主#8
不适合大家庭大家庭可以选择 penthouse (虽然只有两间大型的)
5bdrm 4bdrm 就蛮多了
这种Triple Key的单位 很多人买了分组给小家庭(情侣 或者2+1)
避税而已 经济实惠大家庭可以选择 penthouse (虽然只有两间大型的)
5bdrm 4bdrm 就蛮多了
这种Triple Key的单位 很多人买了分组给小家庭(情侣 或者2+1)
避税而已 经济实惠 -
#9
因为之前看过一个新闻好像英国的
三个女性好朋友住一起几十年了
三个人也一直未婚
现在都八十左右了好像英国的
三个女性好朋友住一起几十年了
三个人也一直未婚
现在都八十左右了 -
七夜 楼主#10
真爱爱情的力量是伟大的爱情的力量是伟大的
-
#11
我在做这个项目,请看下图。
想买3钥匙的都是投资的。
自住可以找其他房型。

想买3钥匙的都是投资的。
自住可以找其他房型。

-
#12
感觉很适合投资这样的房型大约要多少钱呢这样的房型大约要多少钱呢
-
七夜 楼主#13
目前开发商报价 1480如题如题
-
七夜 楼主#14
去braddel mrt 400米
靠近braddell mrt 400米

靠近braddell mrt 400米

-
#15
平均尺价$1480psf这个户型应该会高一些。这个户型应该会高一些。
-
#16
见下图, Toa Payoh Lorong 4/6
走路可到 Braddell MRT,培群小学一公里。

走路可到 Braddell MRT,培群小学一公里。

-
#17
ios版发图功能还没有修复,会在这两天尽快修复。现在网页版可以发图~现在网页版可以发图~
-
七夜 楼主#18
原来如此哦 原来是这个样子
哦 原来是这个样子 -
#19
不错省了ABSD了,真心觉得厨房没什么用。其实面积还可以再小一点或者改成4钥匙单位。
话说政府没有regulate这个吗?要买赶紧,说不定明天政府就说不许做超过2个钥匙了。省了ABSD了,真心觉得厨房没什么用。其实面积还可以再小一点或者改成4钥匙单位。
话说政府没有regulate这个吗?要买赶紧,说不定明天政府就说不许做超过2个钥匙了。 -
#20
挺好的,可惜现在还没有PR。请问图上这个有多大面积啊?请问图上这个有多大面积啊?
-
#21
对啊有机会要抓住赶早不赶晚:)赶早不赶晚:)
-
#22
3钥匙单位980sqft / 91 sqm投资很好投资很好
-
#23
我问一个实际的问题三家人住一起 真的好吗?
矛盾什么的 会不会有
真的有三个家庭愿意住一起吗? 总觉得有点不太实际三家人住一起 真的好吗?
矛盾什么的 会不会有
真的有三个家庭愿意住一起吗? 总觉得有点不太实际 -
#24
这个很好啊,想买
-
#25
请问你电话多少啊?
-
#26
开发商正在下一盘大棋你懂的
帮你连省两套absd你懂的
帮你连省两套absd -
#27
已经私信这周五就可以通过我向发展商register:)这周五就可以通过我向发展商register:)
-
七夜 楼主#28
各自为政可以三个小家庭 可以三对情侣
总之租金总和要比同等面积的一般三房高出很多
投资人的目的达到就好了
喜欢的话可以私信你我的电话
获取一手消息
要 就要最好的哈可以三个小家庭 可以三对情侣
总之租金总和要比同等面积的一般三房高出很多
投资人的目的达到就好了
喜欢的话可以私信你我的电话
获取一手消息
要 就要最好的哈 -
#29
GEM RESIDENCES 帐篷做好了.
actual site Toa Payoh Lorong 4/6里面有个帐篷,明天我会在那里. 欢迎围观. 哈哈:)

actual site Toa Payoh Lorong 4/6里面有个帐篷,明天我会在那里. 欢迎围观. 哈哈:)

-
七夜 楼主#30
VVIP 抢购开始现在!VVIP注册抢购开始啦 请做到:(在别人还没明白过来的时候 你已经在奋斗了)
今天天气很凉快现在!VVIP注册抢购开始啦 请做到:(在别人还没明白过来的时候 你已经在奋斗了)
今天天气很凉快