我没有打错,大家也没有看错。
某新盘 EC 顶层,无论哪个房型,都是4.8米!
有打算买新EC的朋友,要关注了!

我没有打错,大家也没有看错。
某新盘 EC 顶层,无论哪个房型,都是4.8米!
有打算买新EC的朋友,要关注了!

the visionaire or parc@life?Parc@life 怎么没人提?Parc@life 怎么没人提?
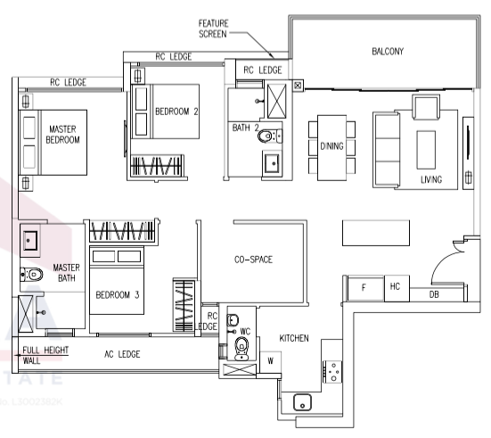
什么是co space?无门无窗无门无窗
这样是不是可以改成跃层啦~~
青建的一个卖点,那块地方屋主有选择怎么建,可以是一个房间,或者study room + store room或者study room + store room
这个厨房真是小得可怜比厕所都小。。。。比厕所都小。。。。
感觉户型图不错呢这是哪个ec?这是哪个ec?
那个空间看家庭需求可以做成 study room或者walk in wardrobe,或者一半storage一半study corner,等等或者walk in wardrobe,或者一半storage一半study corner,等等
可以做跃层面积不超过5sqm,不用批准.
超过5sqm需要批准.面积不超过5sqm,不用批准.
超过5sqm需要批准.
The Visionaire EC near Canberra MRT这是第一个 smart home EC这是第一个 smart home EC
呃。。。5平只是一张双人床的大小啊。。。
门口有 dry kitchen门口进来的那个正中的小台子,如果猜得没错,应该plan是算也是厨房的一部分门口进来的那个正中的小台子,如果猜得没错,应该plan是算也是厨房的一部分
觉得这种设计不适合中式家庭吧,送那么大个台面, 后面再额外放个餐桌, 太浪费空间了。
这次青建的floorplan感觉厅好小。送那么大个台面, 后面再额外放个餐桌, 太浪费空间了。
这次青建的floorplan感觉厅好小。
对,全新加坡的公寓都要遵守这个规则喜欢high ceiling的可以选,不喜欢high ceiling或者觉得有点浪费的可以选一般的ceiling height的单位。喜欢high ceiling的可以选,不喜欢high ceiling或者觉得有点浪费的可以选一般的ceiling height的单位。
那个可以做bar counter或者dry kitchen或者dry kitchen
客厅加餐厅挺宽的有4.8米到5米这么宽,如果把bar counter那个地方做餐厅,那客厅真的是很大。有4.8米到5米这么宽,如果把bar counter那个地方做餐厅,那客厅真的是很大。
看来结构设计的没动脑子这种布局为什么不考虑3各厕所尽量靠近? 可以省出不少面积,成本,又可以增加卖点--如每个房都有车厕所, 排水,排气共用...这种布局为什么不考虑3各厕所尽量靠近? 可以省出不少面积,成本,又可以增加卖点--如每个房都有车厕所, 排水,排气共用...
还有其他户型3房4房很多户型可以选的:)3房4房很多户型可以选的:)
空调比厨房还大 差评我家3.5米已经觉得很高了 4.8换个灯泡都麻烦我家3.5米已经觉得很高了 4.8换个灯泡都麻烦
这阳台真的好大啊。。。。
可以装欧式宫廷风复古水晶大吊灯就可以够着灯泡了,哈哈就可以够着灯泡了,哈哈
给跪了~ 目测家里量了一下三米都不到
3.5m 可以在其中一个房间做 loft 了,空间利用很好有小朋友跟爸爸妈妈来看房的都很喜欢 loft 的设计,有的直呼“我的房间。。。”有小朋友跟爸爸妈妈来看房的都很喜欢 loft 的设计,有的直呼“我的房间。。。”
这种高度装水晶灯妥妥的灯饰可以好好发挥一下哈哈灯饰可以好好发挥一下哈哈
很正常!一般是2.7米一般是2.7米
一样,搬家第一件事情买了个梯子。不然矮人一族啥都够不到
难做吗跃层成本多高?容易批吗?跃层成本多高?容易批吗?
价格要跟contractor商量,几千都一万多都有,看design,看材料.
一般少于5sqm 不用approval.看design,看材料.
一般少于5sqm 不用approval.