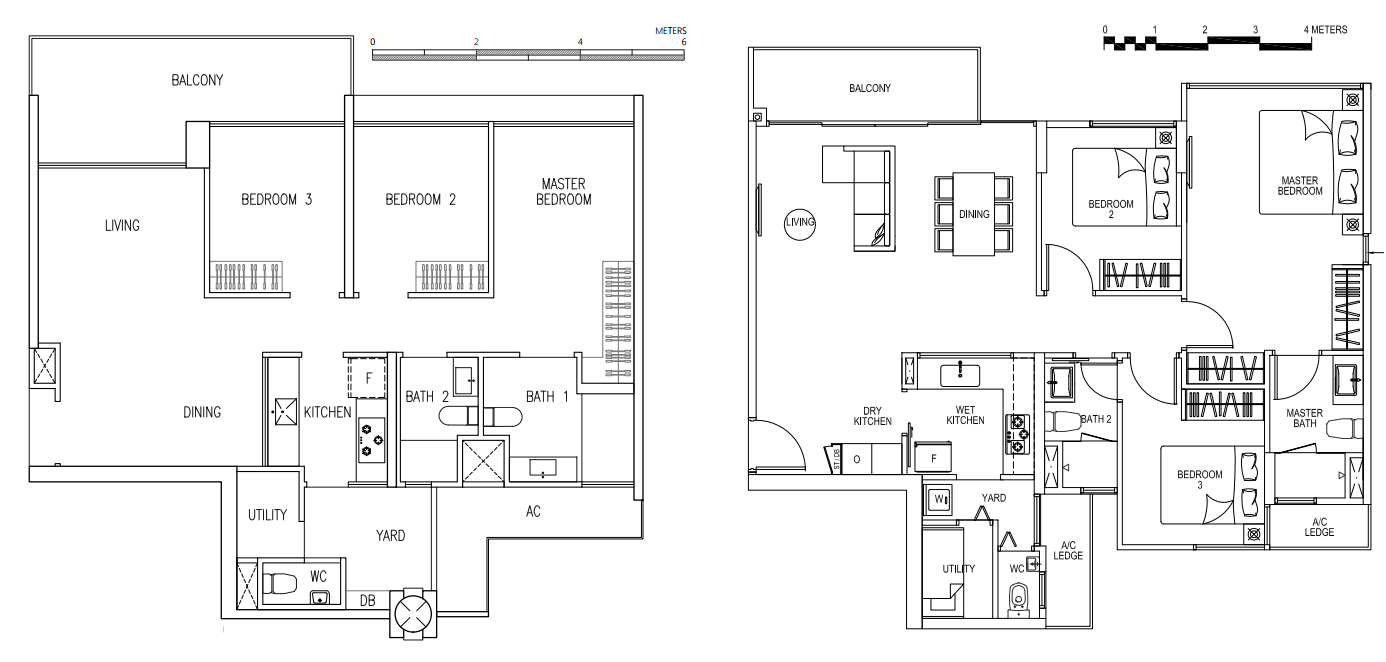
这两个户型面积一样
solo_estoy • • 50905 次浏览求点评优劣

-
#1
看着左边好方方正正的总归讨人喜欢 等专家方方正正的总归讨人喜欢 等专家
-
#2
果断右边啊要那么大的阳台干什么?当然土豪除外。要那么大的阳台干什么?当然土豪除外。
-
#3
同时求问右边的condo叫什么名字?右边的condo叫什么名字?
-
#4
我的看法:左边的layout好一些,不过厨房小, 不过有个不小的yard,不懂实用不实用,阳台太大,客厅有点小。 AC ledge似乎也很大
右边的floorplan看着有点乱,不过AC ledge很小, 厅大, bedroom 3 太小。 common toilet居然要进bedroom 3 才可以进,好奇怪的设计。
个人两个都不喜欢。 左边的layout好一些,不过厨房小, 不过有个不小的yard,不懂实用不实用,阳台太大,客厅有点小。 AC ledge似乎也很大
右边的floorplan看着有点乱,不过AC ledge很小, 厅大, bedroom 3 太小。 common toilet居然要进bedroom 3 才可以进,好奇怪的设计。
个人两个都不喜欢。 -
#5
觉得右边好一点吧左边面积浪费好多,阳台和yard空调什么的。右边厅很宽敞,比较舒服。左边面积浪费好多,阳台和yard空调什么的。右边厅很宽敞,比较舒服。
-
#6
右图有三个厕所。。。三个厕所。。。
-
#7
肯定右边好啊客厅大+主人房大
客厅大+主人房大 -
#8
右边户型,bath2有两个门一个是从走廊进来的推拉门,另外一个是从右侧bedroom3的单扇门,不错的设计。一个是从走廊进来的推拉门,另外一个是从右侧bedroom3的单扇门,不错的设计。
-
#9
果断右边卧室都不受活动区域打扰,楼上说三个厕所的左面也是三个,第三个都是给佣人的。。还有人说common washroom是从bedroom走的,仔细看图应该是双开门概念吧,不喜欢封了好了。卧室都不受活动区域打扰,楼上说三个厕所的左面也是三个,第三个都是给佣人的。。还有人说common washroom是从bedroom走的,仔细看图应该是双开门概念吧,不喜欢封了好了。
-
#10
在westwood EC看到过那个双门厕所的设计不懂lz的这个是不是那儿,感觉这个双门厕所的设计很好,可以私用,也可以公用不懂lz的这个是不是那儿,感觉这个双门厕所的设计很好,可以私用,也可以公用
-
#11
求图2公寓名字最近在看房,谢谢最近在看房,谢谢
-
solo_estoy 楼主#12
图二已售完是Rainforest是Rainforest
-
#13
有两扇门吗?我觉得卫生间两扇门才奇怪呢干嘛要从房间里面再搞一个门。一个卫生间两个门可以进最奇怪了,另外两个房间的人和客人,随时可能发生一个人在里面,另一个人从另一边进来的尴尬。对了可以进去后反锁另一个门,但是何苦多一个步骤?要人从common room走出来再进入旁边卫生间,是会累死?
还有这个bedroom的床头,一墙之隔的那边是master room的厕所,虽然我不讲风水,但是睡在那张床的人感觉十分不好啊!干嘛要从房间里面再搞一个门。一个卫生间两个门可以进最奇怪了,另外两个房间的人和客人,随时可能发生一个人在里面,另一个人从另一边进来的尴尬。对了可以进去后反锁另一个门,但是何苦多一个步骤?要人从common room走出来再进入旁边卫生间,是会累死?
还有这个bedroom的床头,一墙之隔的那边是master room的厕所,虽然我不讲风水,但是睡在那张床的人感觉十分不好啊! -
#14
左图我猜是即将开盘的wandervaleba
-
#15
两个都不差个人喜欢第一个,方方正正的个人喜欢第一个,方方正正的
-
#16
ec 买不了哦以前同事买的rainforest,貌似家里很挤啊哦以前同事买的rainforest,貌似家里很挤啊
-
#17
两个都不喜欢+1非要选一个的话选左边的。
左边那套的厨房和旁边的utility yard应该采光比右边那套好,还可以放洗衣机、挂衣服,空间大点。右边的被厕所和utility房包住,会暗无天日?
左边的大门和饭厅之间用个屏风隔起来就好,厨房门口要是能改到饭厅这个方向就更好了。
右边的大门推开直接看到厨房没隐私,完全没法改。空调外机靠近其中一个房间,就算不介意噪音长期下来人也不会很舒服。非要选一个的话选左边的。
左边那套的厨房和旁边的utility yard应该采光比右边那套好,还可以放洗衣机、挂衣服,空间大点。右边的被厕所和utility房包住,会暗无天日?
左边的大门和饭厅之间用个屏风隔起来就好,厨房门口要是能改到饭厅这个方向就更好了。
右边的大门推开直接看到厨房没隐私,完全没法改。空调外机靠近其中一个房间,就算不介意噪音长期下来人也不会很舒服。 -
solo_estoy 楼主#18
宾果小麋鹿在家小麋鹿在家
-
#19
+2左边的那间阳台和放空调机的面积比较大,主人房的床无论怎么摆放将会对厕所门,风水不好左边的那间阳台和放空调机的面积比较大,主人房的床无论怎么摆放将会对厕所门,风水不好
-
#20
右边的实用面积大不少就是layout有点乱,厕所双开不喜欢不过可以改造。
总体还是选右边就是layout有点乱,厕所双开不喜欢不过可以改造。
总体还是选右边 -
solo_estoy 楼主#21
主人房厕所朝向的确是个问题弄个屏风或双面书架算解决吗?弄个屏风或双面书架算解决吗?
-
#22
据说要么改厕所门,要么之间做个挡板但要高过厕所门这样的话,主人房的格局挺多浪费的面积,看看有否高人指点:)这样的话,主人房的格局挺多浪费的面积,看看有否高人指点:)
-
#23
用过这种双开门的厕所,非常不喜欢用厕所要锁上另一扇门,而用完出来时很容易忘记开,造成各种麻烦。
另外其它人使用厕所的声响一定会传到这个卧室,很影响休息。
除非家里人口少除了主卧外只有一个人使用,如果老人小孩几个人共用这个厕所非常不便。
第一次看到这种设计也觉得不错的样子,实际用过才知道一点都不好用厕所要锁上另一扇门,而用完出来时很容易忘记开,造成各种麻烦。
另外其它人使用厕所的声响一定会传到这个卧室,很影响休息。
除非家里人口少除了主卧外只有一个人使用,如果老人小孩几个人共用这个厕所非常不便。
第一次看到这种设计也觉得不错的样子,实际用过才知道一点都不好 -
#24
感觉左边那个像waterbay?不知道对不对不知道对不对
-
#25
加上女佣的那个厕所两边都是三个啊。
-
#26
才想起以前看一个EC的时候也是有同样设计,我当时也是想到进厕所还要锁两个门, 真不懂哪些设计师怎么想的。我当时也是想到进厕所还要锁两个门, 真不懂哪些设计师怎么想的。
-
#27
我更喜欢左边的户型方正 放空调的地方离卧室比较远 不会吵
右边的虽然室内面积大 可是有一个房间里空调很近 而且主卧大出来那部分面积感觉都没有办法利用到啊 四面不是门就是柜子 什么都没法放户型方正 放空调的地方离卧室比较远 不会吵
右边的虽然室内面积大 可是有一个房间里空调很近 而且主卧大出来那部分面积感觉都没有办法利用到啊 四面不是门就是柜子 什么都没法放 -
#28
各有优缺点,一定要选会选左边左边的主要问题是阳台和空调台面积太大,但是相对来说户型比较整齐。如果左边的客厅落地窗的位置可以和普通房墙壁的位置平齐,我觉得就会好很多。
左边毛病就多了,宽厅设计,端个菜走到饭桌边上都很远。
看起来利用面积大,但是进门到客厅之间的面积一般来说都是无法有效利用的,过道再大又能如何?还有两个普通房的面积比起左边一点也没有更大。
主人房是大一点,但是厕所开门对着床的问题是一样的。
双开门的厕所设计个人不喜欢,以前住过这样的房子,不管谁使用bath2,bedroom3的人都会清楚的听到声音, 除非封掉朝外的门,变成bedroom3的专用厕所,但是这样的话就没有公用厕所了。
有人说左边yard面积大,太浪费,事实上我觉得这个yard放了洗衣机烘干机和洗衣服水槽面积其实挺正好的,像右边那样yard上没有一个水槽可以搓洗衣服和拖把抹布,而且晾个衣服都晾不开,是不会舒服的。
左边的主要问题是阳台和空调台面积太大,但是相对来说户型比较整齐。如果左边的客厅落地窗的位置可以和普通房墙壁的位置平齐,我觉得就会好很多。
左边毛病就多了,宽厅设计,端个菜走到饭桌边上都很远。
看起来利用面积大,但是进门到客厅之间的面积一般来说都是无法有效利用的,过道再大又能如何?还有两个普通房的面积比起左边一点也没有更大。
主人房是大一点,但是厕所开门对着床的问题是一样的。
双开门的厕所设计个人不喜欢,以前住过这样的房子,不管谁使用bath2,bedroom3的人都会清楚的听到声音, 除非封掉朝外的门,变成bedroom3的专用厕所,但是这样的话就没有公用厕所了。
有人说左边yard面积大,太浪费,事实上我觉得这个yard放了洗衣机烘干机和洗衣服水槽面积其实挺正好的,像右边那样yard上没有一个水槽可以搓洗衣服和拖把抹布,而且晾个衣服都晾不开,是不会舒服的。 -
#29
第二段第一个字是“右边”……
-
#30
面积多大的?布局是左边好,但是阳台延到客房以及很大的空调位置,觉得是有些浪费。。布局是左边好,但是阳台延到客房以及很大的空调位置,觉得是有些浪费。。
-
solo_estoy 楼主#31
1130 sq ft105 sqm105 sqm
-
#32
右边。。。因为实用面积大在坡县巨讨厌带阳台的房子。。
除了养宠物什么都不可以做。。。狗都不乐意呆...
晒个衣服,要是大高楼...飞一吹,绝对是掉地上重洗。不掉楼下万幸了。护窗不能装,玻璃不能装. 小孩稍微靠近,都会觉得心跳。养花又招蚊子。我唯一想得到的用处, 我爹或者他爹来了抽个烟... 一个普通房的面积就是给烟民抽烟......真的是奢侈,还不健康!
明明就是政府以绿化面积便宜卖给开发商的,
开发商用贵的实用面积卖给住户...太可耻了!
在坡县巨讨厌带阳台的房子。。
除了养宠物什么都不可以做。。。狗都不乐意呆...
晒个衣服,要是大高楼...飞一吹,绝对是掉地上重洗。不掉楼下万幸了。护窗不能装,玻璃不能装. 小孩稍微靠近,都会觉得心跳。养花又招蚊子。我唯一想得到的用处, 我爹或者他爹来了抽个烟... 一个普通房的面积就是给烟民抽烟......真的是奢侈,还不健康!
明明就是政府以绿化面积便宜卖给开发商的,
开发商用贵的实用面积卖给住户...太可耻了! -
#33
强迫症你好现在住的房子就是双开门厕所 非常不喜欢 后来封掉一边 忘记锁门影响隐私 吵 等等现在住的房子就是双开门厕所 非常不喜欢 后来封掉一边 忘记锁门影响隐私 吵 等等
-
#34
你看的好仔细!我才发现厕所在一个房间里...好仔细!我才发现厕所在一个房间里...
-
#35
右边因为不喜欢厨房门对着房间门。动静区域分开还是蛮重要的,特别是有了baby要不停的起夜泡奶粉消毒奶瓶什么的,特别影响别的屋子里的人休息。因为不喜欢厨房门对着房间门。动静区域分开还是蛮重要的,特别是有了baby要不停的起夜泡奶粉消毒奶瓶什么的,特别影响别的屋子里的人休息。
-
#36
右边这个虽然看着乱,但是阳台小,总面积一样的话,主卧和客厅比左边的大。就是厨房也挺小的。虽然看着乱,但是阳台小,总面积一样的话,主卧和客厅比左边的大。就是厨房也挺小的。
-
#37
右边好有孩子,厅大好,活动空间多有孩子,厅大好,活动空间多
-
#38
common toilet应该是sliding door 吧。可以两个方向开,不确定应该是sliding door 吧。可以两个方向开,不确定
-
#39
如果阳台的view好的话,更喜欢1多些。
2的一个房间两面都是卫生间。布局不好。
虽然2的厅大但有个拐角,而1的厅是是直的,两个视觉效果应该差不多。
2的一个房间两面都是卫生间。布局不好。
虽然2的厅大但有个拐角,而1的厅是是直的,两个视觉效果应该差不多。
-
#41
左边的和我之前租的一个CCK的房子户型一模一样我感觉阳台太大,不太用得着。
这两个比起来,右边的好吧我感觉阳台太大,不太用得着。
这两个比起来,右边的好吧 -
#42
跟我去看吧我在卖这个,四房房型已经被很多人吐槽了。三房或三房premium还不错。
我在卖这个,四房房型已经被很多人吐槽了。三房或三房premium还不错。
-
#43
左边wandervale ,右边the Vales ?
-
#44
那你就亲去鉴定嘛直接走到那就能看了,cck地铁附近,会有很多agent接待你的,路上还有人发传单,哈哈哈直接走到那就能看了,cck地铁附近,会有很多agent接待你的,路上还有人发传单,哈哈哈