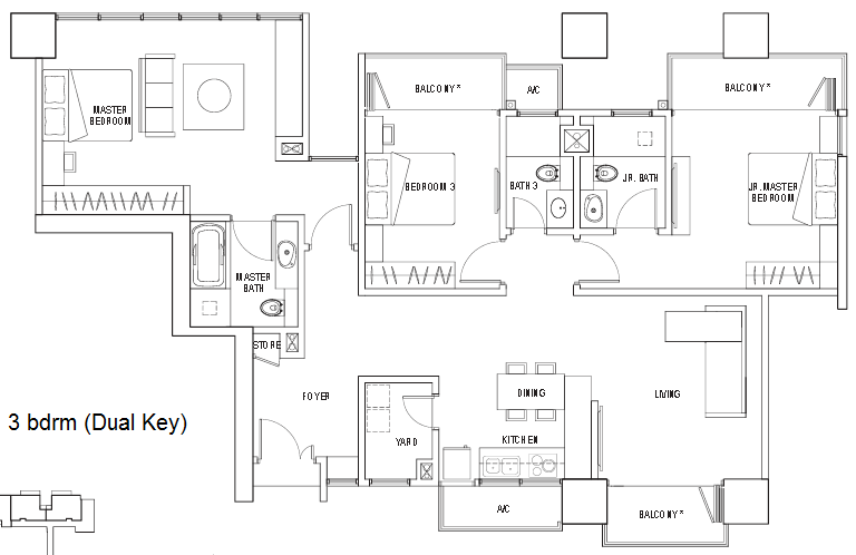
双钥匙(Dual Key)单位
DengWei • • 65200 次浏览给大家普及一下dual key 的小知识。希望下面谈到的对大家今后投资私人房产dual key 单位有帮助。

双钥匙住房单位最早起源于1986年、建屋发展局(HDB)的概念,当时政府有意推动多代家庭生活在同一个屋檐下。当时,有367间在Bishan, Tampines 和 Yishun 推出.这类双钥匙单位一般是四房或五房概念,但设计成拥有一个母单元加一个子单元(套间公寓),由一堵墙和一扇门将两个单位隔开。不过,这类双钥匙组屋单位在推出不久后,就因为需求低而很快就被HDB叫停。
在私人房地产项目中,这个概念开始实施的是星狮地产公司(Frasers Centrepoint Homes)。它在2009年2月推出的新项目水之轩(Caspian)提出来。结果双钥匙单位越来越受欢迎,随后EC和CONDO都陆续推出Dual Key 单位。网上的数据表明,2011年至2014年首两个月期间推出的大型私宅项目(拥有至少400个单位),共有74个。当中,多达35个私宅和EC项目拥有双钥匙单位。它们总共拥有1976个双钥匙单位,其中931个单位属于私宅项目、1045个单位属于EC项目。
私人项目中,双钥匙单位指的是,把两个/三个/四个卧房式单位隔成一个/两个/三个卧房式单位以及一个“小型公寓”(studio apartment)单位。两个单位属于同一张地契,虽共享一个门厅(foyer),但各有一个入口和一套钥匙,两个子单元自给自足,拥有独立的设施比如厕所,餐厅,厨房,但在另一些单位设计中双钥匙单位中,stuio 里面只有厕所,餐厅,没有厨房。厨房则需要共享。
为什么DUAL KEY越来越受欢迎?它满足了下面这部分人的需求:
1)成年孩子和父母一起住,又要有一定的隐私。
2)年轻夫妻和父母一起住,又要有一定的隐私。
3)投资加自住的人士,把小套间或者大套间出租,帮补房贷,又不希望被房客干扰。
4)居家工作人士,把套间改为办公室;
5)纯投资人士,分别出租给不同组客。组客享有各自的隐私。
6)双钥匙私宅单位无须支付额外税务的漏洞,节省买家支付额外买方印花税(ABSD)。从2013年1月起,政府实施额外买方印花税(ABSD)后,许多投资者都对双钥匙单位产生了很大兴趣。购买双钥匙单位的买家只需要支付一份额外买家印花税,就可以同时拥有两三个带来租金收入的单位。发展商看准这类“买一分二”甚至“买一分三”的房产对投资者的吸引力,过去一年开始推出面积更小、更容易出租的单位。现在新加坡房产发展商为了吸引房产投资者,甚至推出“三钥匙单位”的私宅项目。所有三钥匙三卧房式单位都拥有三间浴室,每个卧房都配有浴室,使这三间卧房可以成为独立分隔出来的空间。这个设计是方便投资者将每个房间单独出租出去。
鱼和熊掌不可兼得,大家也要留意DUAL KEY的缺陷。
1)绝大部分私人项目中,dual key可使用空间其实很小,扣除阳台、冷气槽、客厅、饭厅、厨房等,每间卧房可能只有100多平方英尺,比酒店客房还要小。这种小单位违背了双钥匙可供三代同堂大家庭一起居住的意义,这种面积的房间不适合大家庭,或者单身人士长期居住。
2)比较拥有传统格局的两个/三个/四个卧房式单位,Dual key 的价格明显高过大约10~15%左右。
3)如果是投资加自住的人士,需要留意购买租赁市场价格的起伏。如果利率上调或者房屋供应量大量增加,租金可能不足以偿还房贷,房贷压力增加。由于租客群的局限性,地点和优越和便利性也是dual key私人房产要特别注意的。
-
#1
我也觉得Dual key挺好的老少两代人,
都可以保留自己的生活习惯老少两代人,
都可以保留自己的生活习惯 -
#2
看着不错xmlzjxmlzj
-
#3
顶,等楼主回来讲更多呀
-
DengWei 楼主#4
啊?还要听什么啊? : )每个大点的私人项目普遍都有dual key, 我觉得要投资,的确是可以选dual key,但是要注意地点。Dual key 的租客群当然是钱包要厚实一点,私立学校学生和外国年轻专业人士绝对是目标群体。靠近地铁站的或者邻近工作场所的,也是必要条件之一。投资者要仔细比较一下DUAL KEY 公寓附近的设施和到工作学习场所的交通便利性。当然也要计算一下你的 net rental yield。(net rental yield 这才是投资者应该看中的)
每个大点的私人项目普遍都有dual key, 我觉得要投资,的确是可以选dual key,但是要注意地点。Dual key 的租客群当然是钱包要厚实一点,私立学校学生和外国年轻专业人士绝对是目标群体。靠近地铁站的或者邻近工作场所的,也是必要条件之一。投资者要仔细比较一下DUAL KEY 公寓附近的设施和到工作学习场所的交通便利性。当然也要计算一下你的 net rental yield。(net rental yield 这才是投资者应该看中的)