新盘速递 - 使馆区花园洋房式公寓 — Jervios Mansion 卓苑
华新市场部 • • 1252 次浏览
Jervios Mansion
核心区
别墅式
永久地契
在新加坡住有地的花园别墅是很多人的梦想,尤其是对很多在国内住惯大别墅的朋友,那到底有没有办法去实现它?
众所周知,新加坡的别墅只能本国人购买,也就是拥有新加坡人的身份,圣淘沙别墅除外。对PR和外国人怎么办,有没有类似别墅的产品?
有的,位于第十邮区,周边都是有地住宅的 Jervios Mansion, Jervios附近都是别墅洋房,这些别墅里住有新加坡的政要,同时毗邻东陵使馆区,是非常高尚的住宅区。
项目本身从之前的Jervios Mansion集体收购并重新改建成公寓,不仅可以保持之前的生活方式,又能让买家满足购买资格。
项目 要点
Jervios Mansion
"卓苑"
Your browser does not support video tags
位于东陵大使馆第十邮区的永久地契奢华项目
地处优质洋房Jervios区的区域中心,大使馆对面,幽静安全
殖民时期黑白屋设计风格,犹如置身古典英式庄园
小区最大四卧达191平米,通透大平层,另有各种大户型实用双钥匙格局,满足大家庭自住需求
投资型一卧及二卧价位仅110万或者160万起,价格媲美RCR在售项目
开发商给出的尺价仅2200每尺起,比周边二手99年项目还低,非常好的入场价
项目 详情

项目名称: Jervios Mansion 卓苑
发展商: Kimen Realty Pte Ltd
地契: 永久产权
区域: D10 - 东陵/荷兰村/武吉知马
建筑面积: 8,650 平方米
项目规模: 130间,6栋5层高的大楼
项目地址: 4 JERVOIS CLOSE, Singapore 249001
预计交房时间: 2026年12月
新加坡的第十邮区是新加坡核心区,也是密度最低的住宅区,开车经过这一区域的时候会看到路边绿绿葱葱的植被以及各式各样的顶级洋房。

Jervios Mansion 卓苑就位于这一邮区的泽维士路(Jervios Road), 周边都是优质洋房,邻居是各国大使馆以及政要。整个项目的容积率仅1.4,在高达8656平方米的土地上,仅建造了130套住宅,分布在6栋5层楼的住宅上,可以说是依袭了这一区的低密传统。

Jervios Mansion 卓苑从旧的楼盘集体收购重新改建,是永久地契的项目,目前市场永久地契的只能从旧楼Enbloc 而来,大部分分布在核心区。非常稀有。
出于对全球气候变暖这一重大课题的关注,采用BCA能量极低的建筑方式,是新加坡首个超低能量的私宅项目。

历史传承,项目的设计灵感来自殖民时代的黑白洋房,采用各种传统的建筑元素,使项目很好的与周边洋房及使馆建筑的历史气息融为一体。

贴近自然的空间需求,各栋楼之间分散伫立,楼间花园贯穿其中,并精心打造的各种水平和垂直空中绿色景观,让住户们时刻置身于大自然,体验花园洋房的居住方式。



核心地段 · 便利生活

Jerviois Mansion 所在的第10邮区属于新加坡的核心邮区,它所在泽维士路非常靠近乌节路,新加坡河和中央商务区,这个地段也是多个国家的大使馆所在地,周边住宅多为别墅洋房,居住在这个地段既能享受使馆洋房区的高尚宁静生活,又与乌节路的繁华近在咫尺。


公寓周边有四个地铁站,位于绿线的中峇鲁、红山地铁站,以及将于2022年建成的位于褐色线路的大世界地铁站和乌节林荫道地铁站。沿着绿树成荫道路大概步行10多分钟到达。

开车出行的朋友,可以经由高速路AYE 和CTE轻松去往各大商业中心。
4分钟就可到达乌节路;

6分钟到达中央商务区CBD;

9分钟到达滨海湾商业中心MBFC;

8分钟去往Ophar-Rochor 走廊;

商城学校休闲 · 一流的生活配套


居住在Jervios Mansion,步行三分钟就可到达Valley Point 购物中心,这里有超市,餐馆,各种零售店,补习中心等满足日常所需。
喜欢到繁华热闹的乌节路购物的朋友只需开车4分钟就可到达。这里有知名的品牌旗舰店,精致的餐厅,时髦咖啡馆,随着乌节路的进一步规划,期待更加优质的购物体验。

附近也有多所知名的大商城,Tiong Bahru Plaza中峇鲁商城, 大世界商城Great world city都在两分钟车程内。

周边的教育资源丰富,毗邻乌节路,不仅有很多知名的国际学校 比如 ISS 和Chatsworth International, 政府学校也很多,一公里内有雅德小学和彰德小学。1-2公里内还有颜永成小学,立化小学,克信女子中学等多所知名学校。

休闲方面,公寓出门就是亚力山大公园连接道,通过这个连接道可以直接通往滨海湾,新加坡河畔的罗波申码头和克拉码头。

精品户型 · 开盘VIP价格
1卧1卫
实用面积46平方米

2卧2卫
实用面积657方尺/61平方米

3卧2卫
实用面积936方尺/93平方米

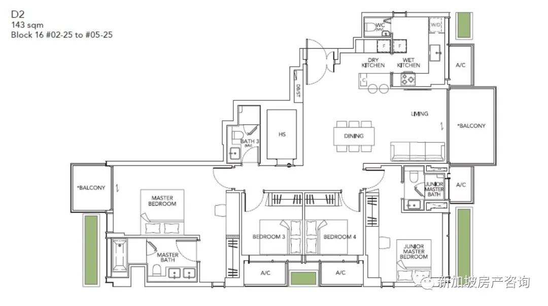
4卧
实用面积143平方米

4卧双钥匙DK单位
实用面积137平方米

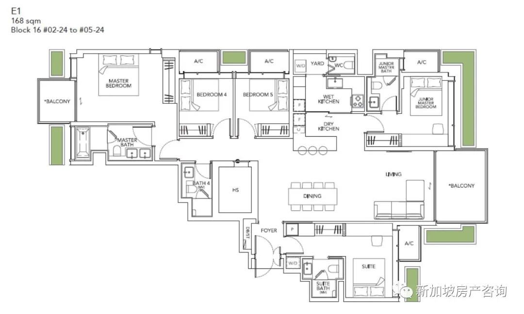
5卧双钥匙DK单位
实用面积168平方米


-
#1
Jervios Mansion视频抢先看有模型
两加书房
和四房样板间视频
-
#2
更多视频拷贝以下链接到浏览器观看https://mp.weixin.qq.com/s/pKOFmKYg7EiFTgf0sdx42A
扫二维码 订阅公众号 欣赏更多视频
-
#3
弱弱多问一句为什么强调殖民时期黑白风格?文中出现了好几次。
值得炫耀吗? -
#4
哈哈 没注意到本意是说是别墅设计
新加坡之前的别墅是那个样子
其实我觉得国内的别墅设计更好看
这边的开发商有点历史情节 感觉 -
#5
Own it allCusumer seminar 新的COO Thomas Tan的演讲
周五晚上8点
-
#6
还可以预约最后几个工作日晚930的时间参观样板间
130套 每一种户型都是市场难得的好货
速约
-
#7
VIP Preview 卖了29间发展商可能会提前开盘 最好尽早看样板间和提交意向 现在都到晚上10:45还有一波

-
#8
最晚8点和朋友看Jervios Mansion郁郁葱葱的景致
模型看了好久
差点没时间看样板间
因为模型太值得研究了,各种顶层花园,还有一楼设施
超强绿化。
对比下才知道 JM是附近最大一片 而且最方正一片地,在jervios 算非常有规模的项目了。
因为地块方正,户型也超级方正。
还有旁边的优质洋房里住的是国防部的部长哦。
他的价位 居然比附近第三区的 99年二手公寓还便宜。 晕了...
#Jervios[话题]# Mansion
#永久产权[话题]#
#使馆区[话题]#
#别墅式[话题]#
#Hannah92364198[话题]#
-
#9
四房主卧目前最受欢迎的户型
JM 的样板间细节图,四房的大卧室,真的只有有地别墅才看得到。
~~~ 感谢相遇 还有好好生活 ~~
-
#10
线上看房来啦! 最后一个周末看样板间! 赶紧预约!我们帮忙安排slot!
还有就是premium blk12和14不卖了,之前提交意向的朋友要重新选。
附图是site plan with distance.
Jervois Mansion Virtual Tours
(1) Virtual Tour Type A2-G one bedroom Ground Floor
https://www.pixelgraph.my/virtual-tour/Kimen_Type%20A2-G/
Virtual Tour Type C2. Three Bedroom
https://www.pixelgraph.my/virtual-tour/Kimen_Type%20C2/
Virtual Tour Type E1. Five Bedroom DK
https://www.pixelgraph.my/virtual-tour/Kimen_Type%20E1/
-
#11
一天就卖完了还是位置好的情况下,定价又非常合理
这个盘已经算是核心区D10的高端盘,刚开始我们都很担心市场对他的接受度。总价也不便宜,结果出来出乎意料。市场上的资金还是很充足。
-
#12
只剩最后的一间四房和一间五房

-
#13
最后的一间四房

-
#14
最后的一间五房

-
#15
中文新闻 喜欢的朋友可以阅读卓苑的中文新闻,总体上这个盘还是适合自住,三房成交尺价大部分在2300-2400总价230万-250万之间。第二期的还有三房大户型和四房大户型,但不确定什么时候开卖。

-
#16
日光了。。。。。。。。。。。还留了25套不卖,这是多看好未来房价