绿墩雅苑 Leedon Green春节2期开盘核心邮区永久地契景观大宅南洋小学学区
华新市场部 • • 6480 次浏览2020年首个开盘的荷兰村项目绿墩雅苑 Leedon Green,他的特点是在黄金地段第十邮区拥有超大占地面积的永久地契项目。市中心,大型社区,公园型绿色住宅,是他的关键字。
2021年的春节迎来了他的二期开盘,不仅有高达12万的春节折扣,还可以转风水轮赢取消费券哦。
具体看下图:

要看样板间的朋友扫码预约:

绿墩雅苑Leedon Green:

01
项目信息
项目名称:Leedon Green 绿墩雅苑
开发商: MCL Land and Yanlord Land
建筑设计师:DCA Architects
项目地址:26-38 Leedon Heights
地契类型: 永久地契
建设面积:320,000平方尺/30,000平方米
项目规模:7座12层的高楼,一共638间单位
预计TOP时间:2023年12月31日
Leedon Green在市中心高达3万平方米的土地上营造出一片世外桃园般宁静,安详的居家之地。错落有致的景观设计,搭配各种绿色植被,充分利用室外空间,创造出图画般美丽,宁静的景观豪宅。


02
地理位置

位于新加坡黄金地段第十邮区的荷兰村-武吉知马区域。毗邻武吉知马的低密优质洋房区,高层可俯瞰别墅风景。步行去世界文化遗产的植物园,尽情享受自然风光。喜欢热闹的朋友可以到邻近的荷兰村酒吧及Dempsey Hill美食中心欢度闲暇时光。
以绿色景观著称的绿墩雅苑和周边的优质洋房,以及植物园融为一体,让住户尽享优质的居住环境。
交通四通八达,几条著名的大路,Farrer road, Lonie road, Bukit Timah road, 以及高速路PIE和AYE 都很容易到达。环线Farrer road 地铁站在步行10分钟内。

03
商城及周边


周围不仅有比较亲民位于地铁站附近的Empress market湿巴刹和美食中心。也有比较高端雅致的就餐中心Dempsey hill.
日新月异的荷兰村正在走一条传统和现代相结合的道路。这些都给公寓的住户提供了多样化生活选择。
04
周边名校

公寓本身位于新加坡著名的学区之一 —第十邮区的武吉知马学区,周围名校环绕。著名的南洋小学和莱佛士女子小学在一到二公里内。毗邻的名校还有南洋幼儿园,St James 幼儿园,华侨中学,南洋女子中学和国家初级学院。
1-2公里内小学
南洋小学(NanYang Primary School)
莱佛士女子小学(Raffles Girls' Primary School)
新镇小学(New town Primary School)
2公里内中学及国际学校
南洋女子中学(Nanyang Girls high school)
华侨中学(Hwa Chong Institution)
公教中学(Catholic High School)
华中国际(Hwa Chong International School)
英华国际 (Anglo-Chinese School (International))
05
户型及价格
一房 实用面积(44平方米)价位123万起

一卧加书房 实用面积(50平方米)价位143万起

两房一卫 实用面积(57平方米)价位161万起

两房两卫 实用面积(66平方米)价位175万起

两房加书房 实用面积(76平方米)价位203万起

三房 实用面积(89平方米)价位235万起

三房加工人房 实用面积(97平方米)价位268万起

三房加工人房加私人电梯 实用面积(126平方米)价位348万起

四房加工人房加私人电梯 实用面积(139平方米)价位372万起

四房双层花园洋房 实用面积(222平方米)价位620万起 已经卖完


06
美图欣赏








-
#1
系统提示:该帖标题已被删除系统提示:该帖正文已被删除
-
#2
吐槽点是什么 愿闻其详
-
#3
因为没满一公里说自己是学区房恐怕说近学校比较合适,中规中矩,可以买
-
#4
记得有一栋在南洋一公里就是那个premium block。
但是,还是想说这个盘太坑爹。Finishing很差,打着豪宅的名义以为和leedon residence一样的定位,实地一看卖的就是普通一个中端公寓。为了卖高尺价面积还做的很小,浪费了这块地,这个尺价可以在D9买不错的盘了。 -
#5
这房子缺点一大堆,压根看不到优点吵,挤
两面对大马路,另外两面正对高密度的两个小区,那个premium block 26,正对着36层的d'leedon,那叫一个痛苦。
交通不便
开车只能走farrer road进leedon heights, 出去走farrer rd进主干道就更痛苦(前面express rd那有红绿灯,这没有);离地铁又远,小跑估计10min
周围啥都没有,除了高密度的住宅区。新加坡也没什么学区房概念,nanyang小学的猫腻有多少你跟本地人打听一下就知道。
内部嘛,不好说,现在新的项目质量普遍差,只有特别贵的小区还看得过去。
这地方真是天花板的价钱,地板上的条件。 -
#6
差点忘了开发商的恶毒我不是中介,但听说卖这里的房子commission 5%起,希望有业内人士澄清一下。
有一点是肯定的,开发商投了很大本钱做销售, 估计也没银子照顾质量了
我刚看了一下srx的公开数据,卖了有2年了吧,才卖了16%的单位。
也只能在网上骂一骂,现实的利益纠葛太大,搞不好把自己饭碗砸了。 -
#7
如果要往市区走进farrer rd后似乎要开到serene centre前面一点点才有个小小的U turn,每次多跑这2km+, 掉头回来又是2km+
要是堵车就玩了 -
#8
哈哈哈哈当时它preview时场面还是很火爆的,当天还看了另外一个盘The Avenir,后者场面冷清多了。我还纳闷后者那么好的盘,那么好的地段,绝对豪宅品质,尺价只差了300,买这个的都图啥?以为进了南洋(能不能进还是另外一回事)娃就升天了?
不过话说回来这个盘定价合理一点还是可以买,大盘,户型周正,周围没有这么好户型的盘,我觉得2300左右尺价比较合理。 -
#9
第一次听commission 5%那得多烂的盘才有这么高的comm
这个盘要说赚钱还不如随便卖个mass 的公寓
是不赚钱的 是被邀请做宣传的职责所在
但盘本身是不错的 不知道为什么楼主那么大火气 -
#10
楼主吐的太欢乐了 我也忍不住按你的节奏吐下咱就说那个premium block 26
他明明有两个朝向,一面对中央泳池,一面对D'leedon
目前卖得最好 因为南洋一公里内
基本上所有买blk26的买家都是买面向泳池的,没有哪个傻缺去买面向D'leedon的 -
#11
德拉老师自己根本不知道 这叫钓鱼发帖 反正得中介出来澄清空手套年糕 你懂的
-
#12
D10还有一个新盘royal green怎么看价格跟这个差不多,位置更差- -
-
#13
特么他们吐得太欢乐 我也忍不住了里面还有开车绕路的,话说我卖个房还得教他怎么开车?
话说哪个傻缺会买了楼王会选朝D'leedon的
这种品质还说烂的 是没看过mass market 的盘吗?
要是那么高comm,公司还得做思想工作挑人来帮忙宣传
话说要定价2300的,你控制开发商的成本吗?
说小跑10分钟到地铁站的,你走过吗? 拍视频告诉大家几分钟好不好?
咋们喷或者吵架可以水平高点吗 至少站在一个高点的地方吵吧 -
#14
站的低吐槽咋了?有权力就让这个账号消失我水平不行真不重要,我在论坛说说看法而已,又不收费。有数据就拿出来把我的槽点都灭了,这边的人自然会觉得dera是个白痴。
我说吵,你总可以找到安静的单位,我说朝向差,你说有好的朝向,你的确没说错,水平也很高。
开车,到地铁距离啊什么的,坑的就是不经常来这的买家。2站bus到mrt,几分钟走到? 这里住d'leedon的应该不少,问问多少比例从家里走路10分钟能到farrer road mrt的?我从d'leedon blk 15外面那块空地走到mrt要超过10分钟的
任何一个买家如果只来个一次看样板房,再细心的人都不可能全部注意到这些。买房子看位置,为啥D10比D9相对贵一点,人家赢得是密度低,交通相对方便。这个盘的位置实在可以算D10垫底。
commission我是真不知道,这个最容易打我脸了,来吧,说个准数让我见识学习一回。 -
#15
royalgreen周围密度低一点离mrt也近一点,
sixth ave mrt周边还有点shophouse,超市,面包,咖啡店500m内都有,也方便
不过公寓里面估计公共面积小,总楼层低了。 -
#16
多烂?就这么烂咯还有,最基本的开发商盈利模式你得至少了解一下。
赚钱不赚钱跟盘好不好完全没关系。开发商拿地贵了被,投入这么大成本做市场销售,不赚钱怪谁呢?
垃圾股一样可以赚大钱,但是拿蓝筹股就一定该赚钱? -
#17
真去看了一下地图公寓外farrer road上一点到mrt google显示650m,不过确实有2站bus,这个bus stop距离有点短 d'leedon比我想的长,远的地方到mrt居然有900m,但篮球场到mrt只需要4-5分钟。 好吧,没去走过,这距离从公寓里走到地铁站门口也是10分钟不夸张。
-
#18
你就了解吗?啥都不懂做喷子做的这么得意有这时间做点有意义的事情不行吗?
没有任何任何证据就随便说数字出来
你是谁啊 你说人家盘烂就烂了
我们至少在工作,你在做什么呢?
做没意义自欺欺人的事情 -
#19
看数据吧 一月份Leedon green 卖出10间在CCR 排第三,Royalgreen 8间 排第四 也算是不错。
顺便说一句 太low 拿不出证据的评论接下来一概不理,如果有可能版主请删 没必要浪费那个时间去和不对的事情争论。
-
#20
不玩了,打住我发现我的神经有点控制不住了
-
#21
说正经的,开发商给的commission 是多少?
-
#22
10套在核心区就是很牛B麻烦你把自己逻辑搞清楚再来骂吧
吃错药别拿中介撒气
你自己没尊严,我们还要尊严的
你再这样诽谤 我们直接线下警局见。
你自己无理我们还得陪着你丢人吗? -
#23
我再告诉你一遍中介也是有尊严的 这个公寓 我自己的也买了
我认为他不错
你再诽谤 我不介意跟你警局见
然后你知道什么是对的什么是错的
叫你再蔑视中介 -
#24
请版主删掉那些不合理的评论网络暴力太可怕了
我自己也买了这个公寓 被人说成这样 心里实在是不好受
也不能冷静来反驳那些不合理的。
请删帖。 -
#25
真牛,把自己都框进去了你要删可以把自己的垃圾扫掉,凭啥管别人?
叫警察?我犯了啥罪?通篇的记录都在
还有,这等才智心智居然买一套这价位的房子,要么你投胎投的好,否则那只能解释为社会的不公平。 -
#26
如果不合理没看出你除了生气还拿出了什么有建设性的反证
话说中介不是都超耐心特别nice的讲解吗 如果客户提疑问 直接回答就是了啊 -
#27
德老师才是没道理瞎哔哔吧
-
#28
我对D10无感所以我自己的估价体系D10要打折价的,卖到2700尺价就是等着人傻钱多的买家。不要说D10密度低,那是牺牲生活方便程度换来的,而且早晚高峰开过bukit timah road和farrer road这两条D10主干道就知道多坑爹了,尤其从支路上主干道可能等十来分钟都插不进去。密度低啥好处都没有,还摊上最堵的路。
我觉得买D10无非是为了学区,不过买得起四五百万房子的家庭多少比例非常在乎娃能不能上南洋,反正我身边不多,更多的还是在乎自己的生活品质。所以这些新盘都设计的忒小,为了控制总价,因为咬咬牙能负担得起两三百万左右的家庭一般是最热衷于学区的。Royal green看了下四室一厅才1259sqft,连吐槽欲望都没有了,基本面向出租的投资客吧。 -
#29
低密度很好啊低密度加上好学区,才代表了高档生活品质吧。不然那些有钱人为什么都要买那呢,海底捞老板的新房子可是在南洋一公里内的。bukit timah路交通还可以,花拉路车是很多,不过这些塞,和组屋区的塞车还是没法比,组屋区的更塞,红绿灯超级多。
-
#30
有地和公寓是不同的概念和D9比,D10的GCB/landed当然是完胜的。但是如果谈公寓,我觉得D9更好,应该比D10卖更高尺价。现在情况是两者尺价差不多,那肯定无脑选D9。事实上,豪宅也是D9多。
-
#31
royalgreen可没学区南洋,rgps, mgs全部都是1KM以外
-
#32
......royalgreen可没学区.......南洋,rgps, mgs全部都是1KM以外.
-
#33
把我帖子删了?我哪句话不合适?
管理员,你删帖的时候有没有考虑网友打字的时间和努力? -
#34
酱紫哈哈哈,那买它图啥?
-
#35
D10完败D9的是有地 公寓里cuscaden, Ardmore park都是D10的, 植物园那边一批是不如D9核心区的。 当然, D9 Sophia hill 那边的也不怎么样。
-
#36
几块landed是很不错queen astrid park, bing tong park, gallop road个人偏好而已,没这预算。 不知道是不是自己的偏见,我觉得gallop road靠近植物园一侧没什么风,选同一个日子(强风,微风,无风的时候)我专门跑了几次感受。bing tong park风最大,最安静,但在山上最不方便。gallop rd风最小。 queen astrid park和gallop rd方便程度差不多
-
#37
Jervois Hill , Tanglin 那里的也不错这些GCB, 要的就是幽静。 03-04年 5-6 M 就能买啊。
-
华新市场部 楼主#38
【狮城帮广告】绿墩雅苑 Leedon Green春节2期开盘核心邮区永久地契景观大宅南洋小学学区
2020年首个开盘的荷兰村项目绿墩雅苑 Leedon Green,他的特点是在黄金地段第十邮区拥有超大占地面积的永久地契项目。市中心,大型社区,公园型绿色住宅,是他的关键字。
2021年的春节迎来了他的二期开盘,不仅有高达12万的春节折扣,还可以转风水轮赢取消费券哦。
具体看下图:

要看样板间的朋友扫码预约:

绿墩雅苑Leedon Green:

01
项目信息
项目名称:Leedon Green 绿墩雅苑
开发商: MCL Land and Yanlord Land
建筑设计师:DCA Architects
项目地址:26-38 Leedon Heights
地契类型: 永久地契
建设面积:320,000平方尺/30,000平方米
项目规模:7座12层的高楼,一共638间单位
预计TOP时间:2023年12月31日
Leedon Green在市中心高达3万平方米的土地上营造出一片世外桃园般宁静,安详的居家之地。错落有致的景观设计,搭配各种绿色植被,充分利用室外空间,创造出图画般美丽,宁静的景观豪宅。


02
地理位置

位于新加坡黄金地段第十邮区的荷兰村-武吉知马区域。毗邻武吉知马的低密优质洋房区,高层可俯瞰别墅风景。步行去世界文化遗产的植物园,尽情享受自然风光。喜欢热闹的朋友可以到邻近的荷兰村酒吧及Dempsey Hill美食中心欢度闲暇时光。
以绿色景观著称的绿墩雅苑和周边的优质洋房,以及植物园融为一体,让住户尽享优质的居住环境。
交通四通八达,几条著名的大路,Farrer road, Lonie road, Bukit Timah road, 以及高速路PIE和AYE 都很容易到达。环线Farrer road 地铁站在步行10分钟内。

03
商城及周边


周围不仅有比较亲民位于地铁站附近的Empress market湿巴刹和美食中心。也有比较高端雅致的就餐中心Dempsey hill.
日新月异的荷兰村正在走一条传统和现代相结合的道路。这些都给公寓的住户提供了多样化生活选择。
04
周边名校

公寓本身位于新加坡著名的学区之一 —第十邮区的武吉知马学区,周围名校环绕。著名的南洋小学和莱佛士女子小学在一到二公里内。毗邻的名校还有南洋幼儿园,St James 幼儿园,华侨中学,南洋女子中学和国家初级学院。
1-2公里内小学
南洋小学(NanYang Primary School)
莱佛士女子小学(Raffles Girls' Primary School)
新镇小学(New town Primary School)
2公里内中学及国际学校
南洋女子中学(Nanyang Girls high school)
华侨中学(Hwa Chong Institution)
公教中学(Catholic High School)
华中国际(Hwa Chong International School)
英华国际 (Anglo-Chinese School (International))
05
户型及价格
一房 实用面积(44平方米)价位123万起

一卧加书房 实用面积(50平方米)价位143万起

两房一卫 实用面积(57平方米)价位161万起

两房两卫 实用面积(66平方米)价位175万起

两房加书房 实用面积(76平方米)价位203万起

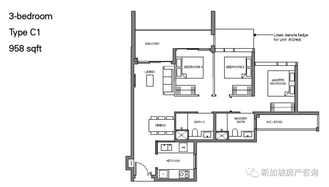
三房 实用面积(89平方米)价位235万起

三房加工人房 实用面积(97平方米)价位268万起

三房加工人房加私人电梯 实用面积(126平方米)价位348万起

四房加工人房加私人电梯 实用面积(139平方米)价位372万起

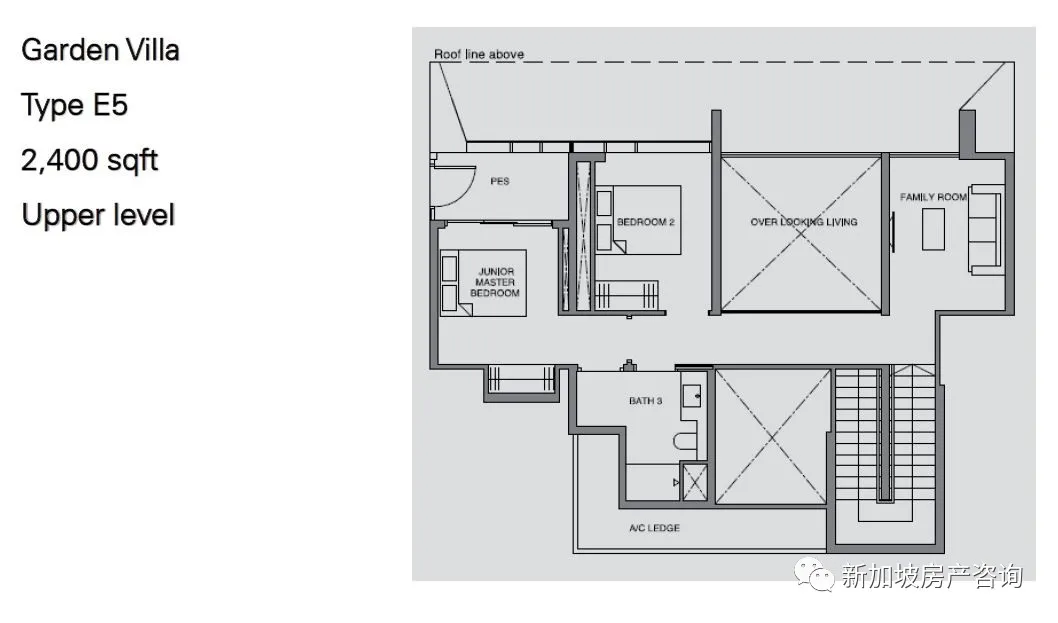
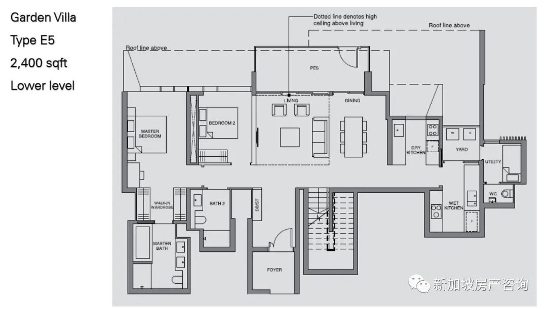
四房双层花园洋房 实用面积(222平方米)价位620万起 已经卖完


06
美图欣赏








该帖荣获当日十大第9,奖励楼主2分以及3狮城帮币,时间:2021-02-24 22:00:08。该帖荣获当日十大第4,奖励楼主12分以及18狮城帮币,时间:2021-02-25 22:00:05。
-
#39
哈哈哈哈哈 我也好欢乐当时坚持自己的观点 就好了
还是平常心 坚持对的东西比较好 还是太嫩了 ... paisay